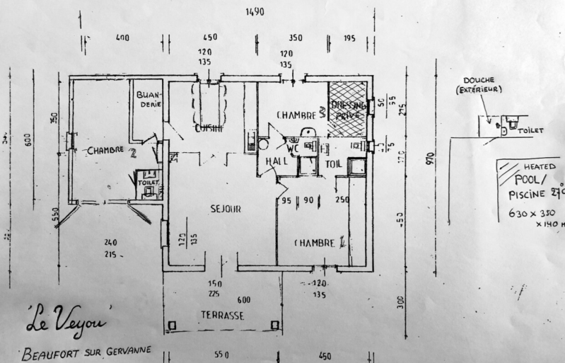
De woonkamer staat vermeld als Sejour en de slaapkamers (chambres à coucher) staan vermeld als 'chambre' 1 t/m 3. (De 'Dressing Privé' is niet beschikbaar.) De bijkeuken heet in het Frans 'Buanderie'.
De woonkamer staat vermeld als Sejour en de slaapkamers (chambres à coucher) staan vermeld als 'chambre' 1 t/m 3. (De 'Dressing Privé' is niet beschikbaar.) De bijkeuken heet in het Frans 'Buanderie'.